Plot - P37

Price
405,350.00€
Plot No.
P37
Status
Available
No. of bedrooms
1
No. of bathrooms
1
Area (sqm)
67
Level
Ground

Overview

This well proportioned one bedroom apartment offers modern, luxury living with SR Estates unique, high specification. Our new homes feature contemporary open-plan living areas and uninterrupted sea views that can be enjoyed from the balcony or terrace. Principal bedrooms come with fitted wardrobes and flooring is included throughout. You can also choose from a range of designer options to tailor your home just for you*

*Subject to designer availability. Specifications are subject to change. Service charge is an estimate only and has not yet been finalised.

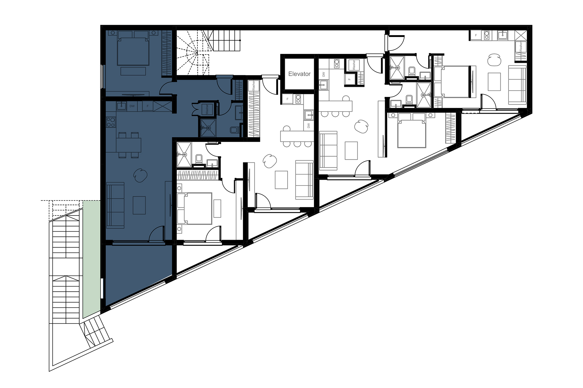
Floorplan

1. Living room 18.90 m2
2. Kitchen with dining area 11.10 m2
3. Hallway 7.40 m2
4. Bathroom 3.90 m2
5. Laundry room 0.70 m2
6. Bedroom 14.60 m2
7. Terrace 10.40 m2
Total apartment area 67.00 m2

Similar Properties

PlotBuildingFloorBedroomsArea (sqm)PriceStatusDetails
P01 Longthorpe HouseBasement174.9453,145.00€
Reserved
P02 Longthorpe HouseBasement182496,100.00€
Reserved
P03 Longthorpe HouseBasement174.9453,145.00€
Reserved
P06 Longthorpe HouseFirst Floor168.9416,845.00€
Reserved
P07 Longthorpe HouseFirst Floor174.6451,330.00€
Reserved
P08 Longthorpe HouseFirst Floor165.4395,670.00€
Reserved
P09 Elton HouseBasement174.5450,725.00€
Reserved
P10 Elton HouseBasement182496,100.00€
Reserved
P11 Elton HouseBasement174.9453,145.00€
Reserved
P14 Elton HouseFirst Floor168.9416,845.00€
Reserved

Provide your contact info

Register Your Interest