Plot - P32

Price
469,480.00€
Plot No.
P32
Status
Available
No. of bedrooms
1
No. of bathrooms
1
Area (sqm)
77.6
Level
First Floor

Overview

This well proportioned one bedroom apartment offers modern, luxury living with SR Estates unique, high specification. Our new homes feature contemporary open-plan living areas and uninterrupted sea views that can be enjoyed from the balcony or terrace. Principal bedrooms come with fitted wardrobes and flooring is included throughout. You can also choose from a range of designer options to tailor your home just for you*

*Subject to designer availability. Specifications are subject to change. Service charge is an estimate only and has not yet been finalised.

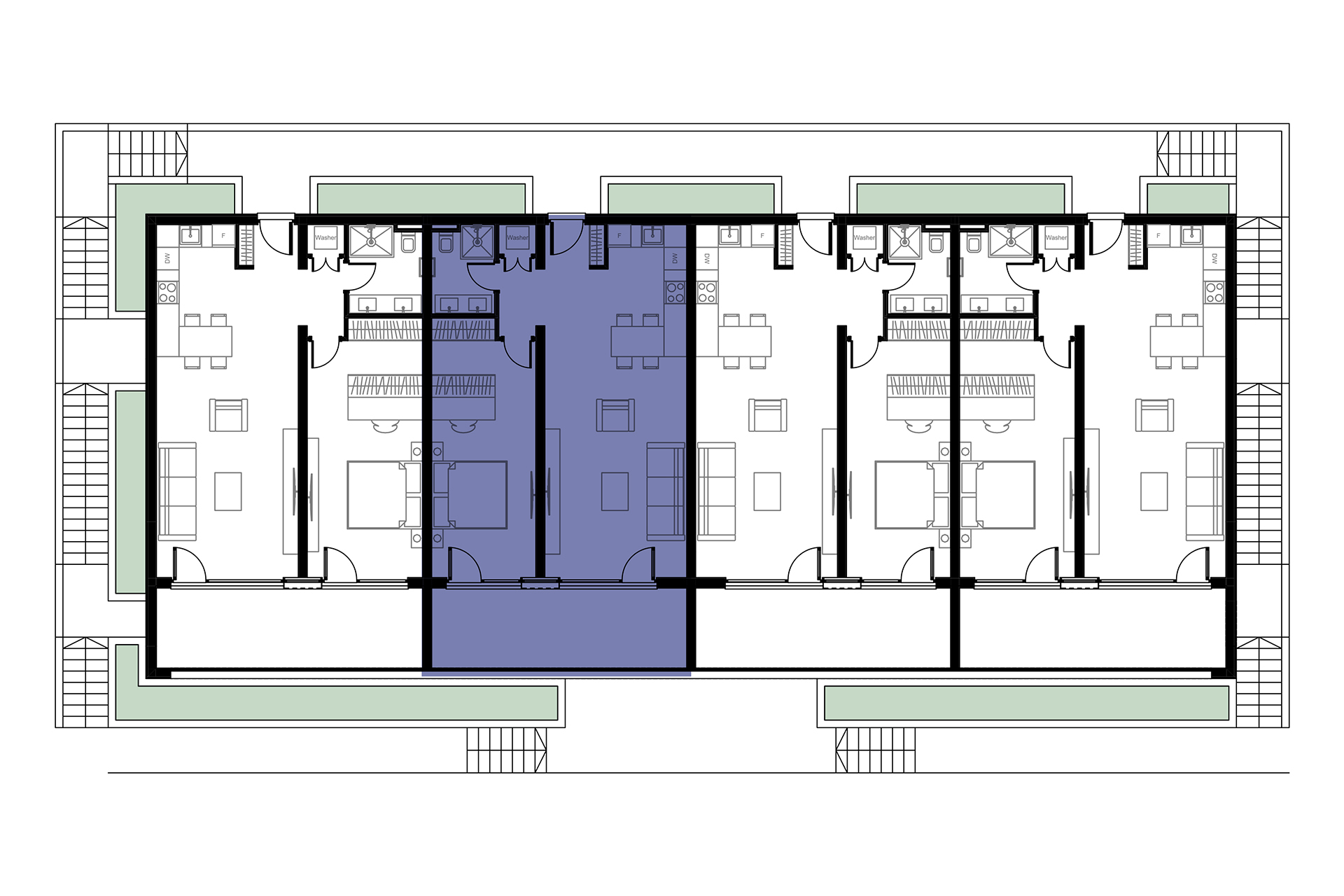
Floorplan

1. Living room 23.70 m2
2. Kitchen with dining area 7.40 m2
3. Hallway 6.90 m2
4. Bathroom 3.90 m2
5. Laundry room 0.90 m2
6. Bedroom with wardrobe 18.70 m2
7. Terrace 16.30 m2
Total apartment area 77.60 m2

Similar Properties

PlotBuildingFloorBedroomsArea (sqm)PriceStatusDetails
P01 Longthorpe HouseBasement174.9453,145.00€
Reserved
P02 Longthorpe HouseBasement182496,100.00€
Reserved
P03 Longthorpe HouseBasement174.9453,145.00€
Reserved
P06 Longthorpe HouseFirst Floor168.9416,845.00€
Reserved
P07 Longthorpe HouseFirst Floor174.6451,330.00€
Reserved
P08 Longthorpe HouseFirst Floor165.4395,670.00€
Reserved
P09 Elton HouseBasement174.5450,725.00€
Reserved
P10 Elton HouseBasement182496,100.00€
Reserved
P11 Elton HouseBasement174.9453,145.00€
Reserved
P14 Elton HouseFirst Floor168.9416,845.00€
Reserved

Provide your contact info

Register Your Interest